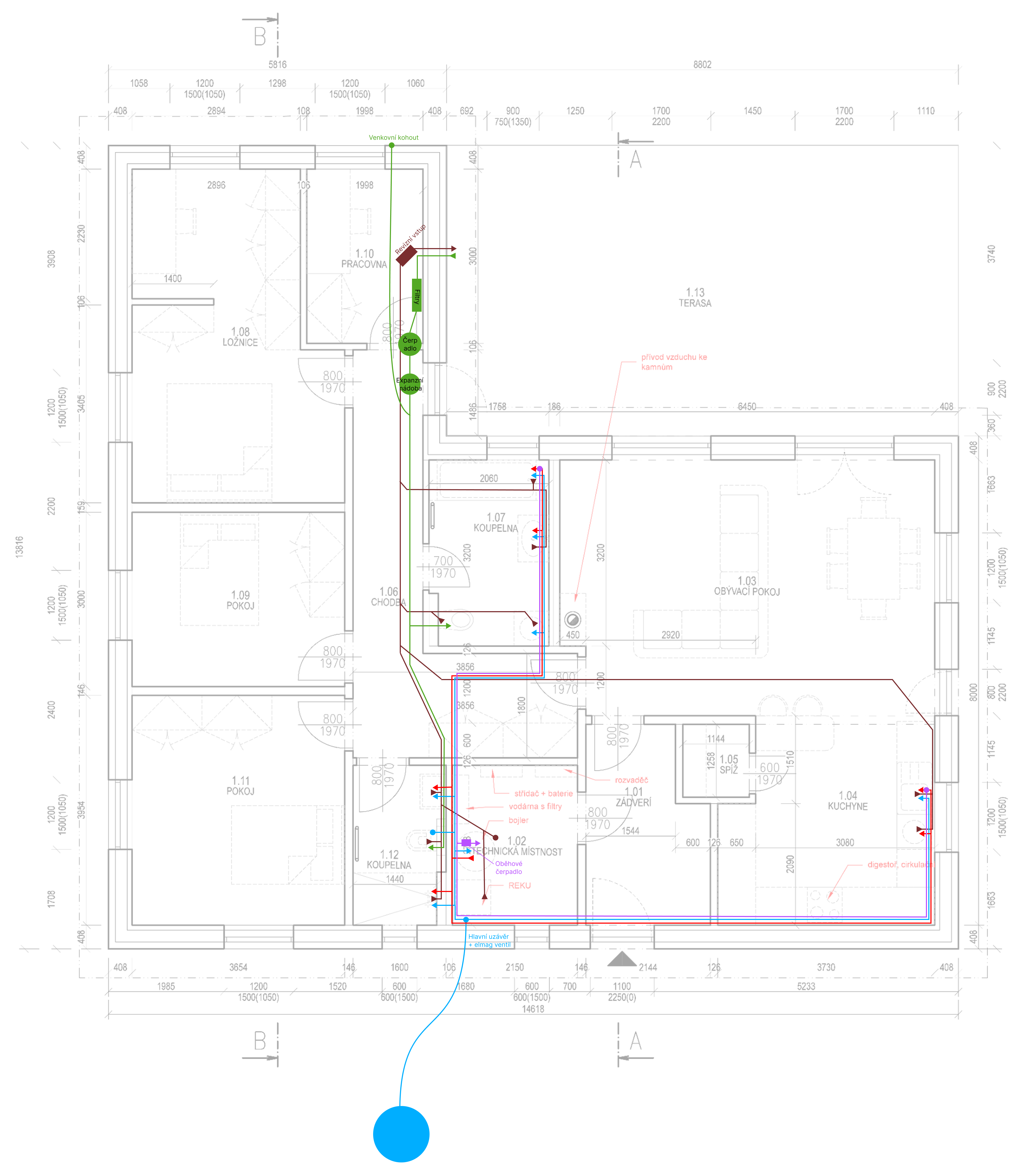
Zapojení vody a odpadu
Vodovod je napojen na vodovodní obecní řad zakončen ve vodoměrné šachtě. Není součástí SČVK.
Odpad je sveden do lokální ČOV na pozemku a dále přepadem odvedeno přes obecní kanalizaci do toku.
Na pozemku je sbírána dešťová voda do podzemní akumulační nádrže (4-6 m3 +-?) s přepadem do vsaku a nouzovým přepadem do toku.

Požadavky voda:
- Vodovod zaveden do TM
- ideálně do vodoměrné šachty udělat elektronické odpojování při úniku vody? Nebude to ale s celou vodomědnou šachtou náhodou pod vodou? :D
- V TM je bojler (asi Dražice OKCE 500 S), nahříván ze sítě a FVE, o kapacitě alespoň 300l se dvěmi patronami
- Z TM je rozvod studené vody do:
- koupeny malé (umyvadlo, sprchový kout, bidetová sprška)
- koupelny velké (umyvadla, vana, pračka)
- kuchyně (dřez,
myčka (bude napojena pouze na teplou)
- na terasu (doplnění vody do akumulační nádrže pro WC v případě dlouhého sucha)
- Z TM je rozvod teplé vody z Bojleru do:
- koupelny malé (umyvadlo, sprchový kout)
- koupelny velké (umavadlo, vana)
- koupelna velká a kuchyně má recirkulační obvod aby byla neustále dostupná teplá voda
- kuchyně (myčka, dřez)
- Z TM/sklepu je rozvod užitkové (dešťové) vody do:
- koupelny malé (WC)
- koupelny velké (WC)
- na terasu (zálivka / mytí auta)? Nebude lepší natáhnout rovnou z akumulační nádrže?
- ke skleníku (není zakreslen v návrhu) a případně i před barák (venkem od sklepa)
Požadavky odpad:
- odpad má odvětrání na střechu (společný se spojením v půdním prostoru? - co nejméně prostupek střechou)
- samostatné odvětrávání ČOV, je to potřeba, nebo projde společným odvětráváním v baráku nad střechu?
- odpad je z:
- Koupelna malá
- sprchový kout
- umyvadlo
- WC
- Koupelna velká
- vana
- umyvadlo
- pračka
- sušička
- WC
- Kuchyň
- TM
- kondenzát z rekuperace
- nouzové vypuštění bojleru
- odtok na podlaze pro případ havárie? Aby nevyplavilo všechnu elektroniku, nebude smrdět zbytečně, počítám, že sifon by vyschnul brzo?